えのきや能生 Enokiya Nou | Apartamento en Itoigawa
Apartamento




Tarifas disponibles:
1 Habitación Apartamento en Nou, Itoigawa
えのきや能生 Enokiya Nou se encuentra en Itoigawa y ofrece alojamiento a 20 km de Tanihama Park, a 26 km de Gochi Park y a 29 km de Santuario Kasugayama. Está a 14 km de Estación de Itoigawa y dispone de wifi gratis y parking privado gratis. Este apartamento con aire acondicionado consta de 1 dormitorio, una sala de estar, una cocina totalmente equipada con nevera y cafetera, y 1 baño con bidet y ducha. Hay toallas y ropa de cama en el apartamento. El aeropuerto (Aeropuerto de Toyama) está a 98 km.
えのきや能生 Enokiya Nou se encuentra en Itoigawa.
Este 1 Dormitorio Apartamento es adecuado para turistas y viajeros. Tiene varias comodidades que garantizarían su comodidad. Estas comodidades incluyen: Servicios de invitado, Niño amigable, Internet, y varios otros. Esta es una propiedad clasificada 4 Star y tiene más de 3 reviews con el puntaje promedio de 7 . ¿Llegar a Itoigawa y necesitar un lugar para quedarse? Ya sea para el trabajo o por el ocio, considere quedarse en este Apartamento para su próxima visita, Seguramente te encantará.
Puede verificar las revisiones y la descripción de este 1 Dormitorio Apartamento Si desea obtener más información sobre este lugar Hotala.ec en Itoigawa. Estos detalles son Auténtico, como son proporcionados por nuestro socio, Booking.com.
Este えのきや能生 Enokiya Nou en Itoigawa está bien equipado y tiene todo Instalaciones que se han enumerado a continuación. Tenga en cuenta que estos detalles fueron compartidos por Booking.com para la lista "えのきや能生 Enokiya Nou". Confiamos únicamente en sus detalles compartidos y somos considerados "precisos". Si tiene alguna preocupación sobre el información o precisión que describe esto Apartamento, por favor déjanos saber.
Número de licencia : M150052117
Comodidades
Descripción general de las instalaciones
-
Registro de entrada y salida sin contacto
-
Se siguen las normas de distanciamiento físico
-
Se puede pagar sin efectivo
-
WiFi gratis
-
WiFi
-
Internet
Políticas
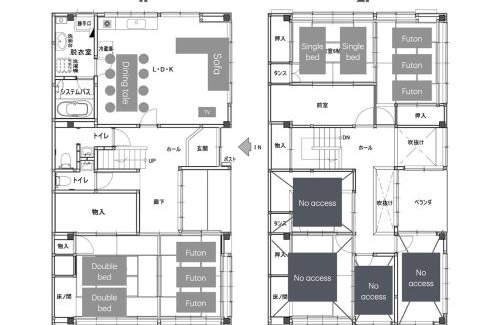
Disposición de la habitación
Información de la habitación | Comodidades |
---|---|
Apartamento
Tipo de habitación:
Apartamento
El tamaño de la habitación:
125 m2
2 Cama individual
Cama
2 Cama doble
Cama
6 Futón
Cama
|
BañoBañera o ducha, Baño privado, Toallas, Aseo adicional, Champú, Acondicionador, Secador de pelo, Bidet, Cepillo de dientes, WC, Gel de ducha, Bañera, Papel higiénico, DuchaGeneralUtensilios de planchado, Aire acondicionado, Plancha para ropa, Extintor, Acceso con llave, Entrada privada, Detector de humo, Papeleras, CalefacciónCocinaTostadora, Hervidor eléctrico, Microondas, Nevera, Fogones, Cafetera, Mesa de comedor, Productos de limpieza, Lavadora, Trona, Cocina, Secadora de ropaEquipamiento audiovisual y tecnológicoTV de pantalla plana, Servicio de streaming (como Netflix)Zona de estarZona de comedor, SofáHabitaciónRopa de camaAccesibilidadAcceso a pisos superiores solo mediante escalerasCaracterísticas del edificioIndependienteInstalaciones de la habitaciónTatami (suelo tradicional japonés), Perchero |
Preguntas frecuentes
¿Es esto えのきや能生 Enokiya Nou amigable para las mascotas para los invitados?
No, las mascotas no están permitidas en esta propiedad. permitido en esta propiedad.
¿A qué hora es el check-in y el check-out en えのきや能生 Enokiya Nou?
La hora de entrada para えのきや能生 Enokiya Nou comienza a contar desde 3:00 PM y la hora de salida es hasta 10:00 AM. Sin embargo, el check-in temprano o el check-out tardío a veces se pueden negociar entre el huésped y el propietario o el administrador de esta propiedad.
¿El えのきや能生 Enokiya Nou tiene una piscina?
No, esta えのきや能生 Enokiya Nou no tiene piscina. Vea los detalles sobre la disponibilidad de piscina interior o privada y otras instalaciones.
¿Cuánto cuesta por noche quedarse en えのきや能生 Enokiya Nou?
Las mejores tarifas para えのきや能生 Enokiya Nou comienzan desde $107 por noche con incluye Internet, Aire acondicionado, Estacionamiento, Seguridad, Chimenea/Calefacción, Servicios de invitado, Niño amigable con todas las demás instalaciones. Hotala.ec coincide con todos los viajeros con su hotel, resort o alquiler perfecto y si viaja con un grupo, amigos, familiares o mascotas.
¿Es えのきや能生 Enokiya Nou un lugar familiar para quedarse?
Según la información que hemos recibido del propietario o nuestro socio, esta no se considera una propiedad familiar. Según lo informado por el propietario o gerente, el apartamento no ha especificado que los niños son bienvenidos. Consulte los detalles sobre la idoneidad de su familia o consulte la propiedad para obtener más información.
¿Es el えのきや能生 Enokiya Nou silla de ruedas accesible u ofrece servicios para invitados discapacitados?
Según la información recibida de nuestro socio, えのきや能生 Enokiya Nou no ha especificado que sea accesible para sillas de ruedas. Un ascensor especificado como disponible en la propiedad. Los detalles de accesibilidad específicos se pueden abordar en la sección Detalles de la propiedad de esta página.
¿Cuál es la política mínima de estadía nocturna para el えのきや能生 Enokiya Nou?
Con base en la información reportada por el propietario o administrador, el えのきや能生 Enokiya Nou indica 1 day política de permanencia en esta apartamento. Se advierte a los huéspedes que la política de estadía mínima puede diferir según la temporada o la disponibilidad y puede quedar a discreción del propietario o gerente.
¿Qué política de cancelación está en su lugar para えのきや能生 Enokiya Nou?
Según la información proporcionada por el propietario o administrador, los detalles de la política de cancelación de えのきや能生 Enokiya Nou son los siguientes: No reembolsable Se advierte a los huéspedes que la política de cancelación puede diferir según la temporada, la disponibilidad o las restricciones de viaje actuales. Los huéspedes también deben tener en cuenta que esta política puede estar sujeta a cambios y debe confirmarse antes de realizar la reserva. Más detalles pueden estar disponibles en esta página en la descripción de la propiedad. Sin embargo, el check-in temprano o el check-out tardío a veces se pueden negociar entre el invitado y el propietario o el gerente de esta propiedad.
La gente también pregunta
Lugares para quedarse cerca d Nou, Itoigawa
-
Más popular
-
Más popular
-
Precio más alto
-
El precio más bajo
-
Calificación más alta
-
Calificación más baja
- Aire acondicionado
- Estacionamiento
- Silla de ruedas accesible
- Aire acondicionado
- Estacionamiento
- TV
- Aire acondicionado
- Estacionamiento
- TV
- Aire acondicionado
- Estacionamiento
- Silla de ruedas accesible
- Aire acondicionado
- Estacionamiento
- Piscina
- Aire acondicionado
- Estacionamiento
- TV
- Aire acondicionado
- Estacionamiento
- Mascota amigable
- Aire acondicionado
- Estacionamiento
- TV
- Aire acondicionado
- Estacionamiento
- Accesibilidad
- Aire acondicionado
- Estacionamiento
- Seguridad
- Aire acondicionado
- Estacionamiento
- Silla de ruedas accesible
- Aire acondicionado
- Estacionamiento
- Seguridad
- Aire acondicionado
- Estacionamiento
- Seguridad
- Aire acondicionado
- Estacionamiento
- Seguridad
- Aire acondicionado
- Estacionamiento
- Vista
- Aire acondicionado
- Estacionamiento
- Seguridad
- Aire acondicionado
- Estacionamiento
- Mascota amigable
- Estacionamiento
- TV
- Vista
- Aire acondicionado
- Estacionamiento
- Seguridad
- Aire acondicionado
- Estacionamiento
- Vista
- Aire acondicionado
- Estacionamiento
- Silla de ruedas accesible
- Aire acondicionado
- Estacionamiento
- Seguridad
- Aire acondicionado
- Estacionamiento
- Vista
- Aire acondicionado
- Estacionamiento
- Vista