SANSUI | Villa en Teshikaga

2 Habitación Villa en Kawayu Onsen, Teshikaga
Te sentirás como en casa, o incluso mejor, gracias a detalles como una bañera de agua termal y una bañera de hidromasaje cubierta, además de una piscina privada y una ducha con efecto lluvia. Y eso por no mencionar los edredones de plumas, el congelador, las toallas y los albornoces.
Comodidades
Descripción general de las instalaciones
-
Calefacción
-
Aire acondicionado
-
Artículos de higiene personal gratuitos
-
Bañera y ducha independientes
-
Secador de pelo
-
Cepillo de dientes y dentífrico
-
Bidé
-
Cabezal de ducha tipo lluvia
-
Papel higiénico
-
Toallas
-
Champú
-
Bañera de agua termal
-
Ropa de cama
-
Edredón de plumas
-
Mesa de comedor
-
Minibar
-
Suelo radiante
-
Comedor
-
Zona de estar
-
Chimenea
-
Lavavajillas
-
Microondas
-
Minihorno
-
Papel absorbente
-
Frigorífico grande
-
Placa de cocina
-
Horno
-
Congelador
-
Arrocera
-
Aparcamiento gratuito en las instalaciones
-
No se aceptan mascotas
-
Si tienes algún requisito de accesibilidad en particular, ponte en contacto con el alojamiento con la información que aparece en la confirmación que recibiste tras realizar la reserva.
-
3 escalones para acceder al alojamiento
-
Suelo de baldosas en la habitación
-
Acceso a la entrada bien iluminado
-
Alojamiento libre de humo
-
Sin ascensores
-
Parqué en la habitación
-
Reserva natural
-
Equitación en las inmediaciones
-
Escalada en las inmediaciones
-
Rutas a pie o en bicicleta en las inmediaciones
-
Habitaciones con distinto mobiliario
-
Acceso por pasillos exteriores
-
Disponibilidad de productos de limpieza ecológicos
-
Habitaciones con distinta decoración
-
2 habitaciones
-
Japonés
-
Inglés
-
Cerca del paseo marítimo
-
En un parque nacional
-
Escritorio
-
Silla de oficina
-
Botella de agua gratuita
-
Servicio de recepción con horario limitado
-
Conexión a Internet wifi gratis con una velocidad de 100 Mbps o más (para 1 o 2 personas, o hasta 6 dispositivos)
-
Terraza
-
Porche entarimado o patio
-
Jardín
-
Pasarela hasta el agua
-
Brasero
-
Patio
-
Detector de monóxido de carbono no indicado (el propietario no ha indicado si el alojamiento cuenta con un detector de monóxido de carbono, puede que te interese llevar uno portátil)
-
Detector de humo no indicado (el propietario no ha indicado si el alojamiento cuenta con un detector de humo)
-
Piscina privada
-
Bañera de hidromasaje privada cubierta
-
3 baños termales al aire libre
-
Temperatura de las aguas termales: 41 ºC
-
Horario de las aguas termales: de 00:00 a 00:00
-
Bañera de hidromasaje privada
Políticas
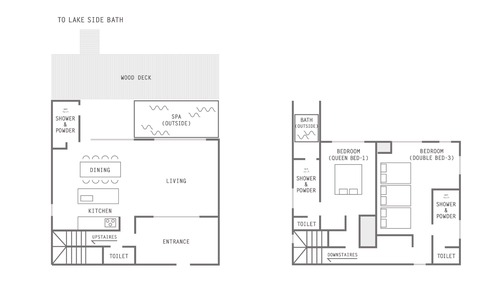
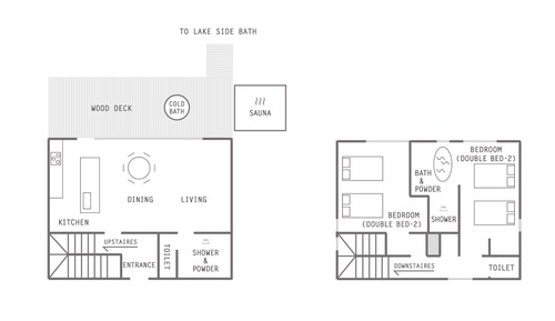
Disposición de la habitación
Información de la habitación | Comodidades |
---|---|
Villa estándar, junto al lago
El tamaño de la habitación:
1335 square feet m2
|
GeneralNúmero de salas de estar 1, Ubicación: planta baja, Pies cuadrados: 1335, Número de habitaciones: 2, Número mínimo de camas 4, Número de baños: 1, Número máximo de camas 4, Metros cuadrados: 124, Baño privado, Ping: 38 |
Villa de lujo, junto al lago
El tamaño de la habitación:
2347 square feet m2
|
GeneralNúmero de salas de estar 1, Ubicación: planta baja, Pies cuadrados: 2347, Número de habitaciones: 2, Número mínimo de camas 4, Número de baños: 1, Ping: 66, Número máximo de camas 4, Baño privado, Metros cuadrados: 218 |
Preguntas frecuentes
¿Es esto SANSUI amigable para las mascotas para los invitados?
No, las mascotas no están permitidas en esta propiedad. permitido en esta propiedad.
¿El SANSUI tiene una piscina?
No, esta SANSUI no tiene piscina. Vea los detalles sobre la disponibilidad de piscina interior o privada y otras instalaciones.
¿Cuánto cuesta por noche quedarse en SANSUI?
Las mejores tarifas para SANSUI comienzan desde $1,177 por noche con incluye Ropa de cama/Ropa de cama, Bar, Piscina privada, Actividades deportivas, Chimenea/Calefacción, Servicios de invitado, Barbacoa/Cocina al aire libre, Internet, Cocina, Aire acondicionado, Instalaciones de bienestar, Artículos de aseo, Estacionamiento, Piscina, Seguridad, Niño amigable, Balcón/Terraza, Accesibilidad con todas las demás instalaciones. Hotala.ec coincide con todos los viajeros con su hotel, resort o alquiler perfecto y si viaja con un grupo, amigos, familiares o mascotas.
¿Es SANSUI un lugar familiar para quedarse?
Según la información que hemos recibido del propietario o nuestro socio, esta no se considera una propiedad familiar. Según lo informado por el propietario o gerente, el villa no ha especificado que los niños son bienvenidos. Consulte los detalles sobre la idoneidad de su familia o consulte la propiedad para obtener más información.
¿Es el SANSUI silla de ruedas accesible u ofrece servicios para invitados discapacitados?
Según la información recibida de nuestro socio, SANSUI no ha especificado que sea accesible para sillas de ruedas. Un ascensor especificado como disponible en la propiedad. Los detalles de accesibilidad específicos se pueden abordar en la sección Detalles de la propiedad de esta página.
¿Cuál es la política mínima de estadía nocturna para el SANSUI?
Con base en la información reportada por el propietario o administrador, el SANSUI indica 1 day política de permanencia en esta villa. Se advierte a los huéspedes que la política de estadía mínima puede diferir según la temporada o la disponibilidad y puede quedar a discreción del propietario o gerente.
¿Qué política de cancelación está en su lugar para SANSUI?
Según la información proporcionada por el propietario o administrador, los detalles de la política de cancelación de SANSUI son los siguientes: Política de cancelación Se advierte a los huéspedes que la política de cancelación puede diferir según la temporada, la disponibilidad o las restricciones de viaje actuales. Los huéspedes también deben tener en cuenta que esta política puede estar sujeta a cambios y debe confirmarse antes de realizar la reserva. Más detalles pueden estar disponibles en esta página en la descripción de la propiedad. Sin embargo, el check-in temprano o el check-out tardío a veces se pueden negociar entre el invitado y el propietario o el gerente de esta propiedad.